The Art and Science of Drafting in Piping Design
Drafting forms the foundational backbone of effective piping design solutions, translating conceptual engineering ideas into precise, actionable visual representations. At Piping Design Solutions, our drafting expertise—leveraging advanced CAD software and skilled CAD Operators and Engineers—ensures adherence to standards like ASME and API. This minimizes errors, optimizes material usage, facilitates multidisciplinary collaboration, accelerates timelines, and reduces costs.
P&IDs: Precision in Process Control
Piping and Instrumentation Diagrams (P&IDs) detail interconnections between piping, equipment, valves, and instrumentation, serving as blueprints for safe, efficient operations. They enable engineers to identify bottlenecks, ensure regulatory compliance, and integrate control strategies early. For your business, our high-quality P&IDs enhance operational reliability and provide scalable roadmaps for future modifications and expansions.
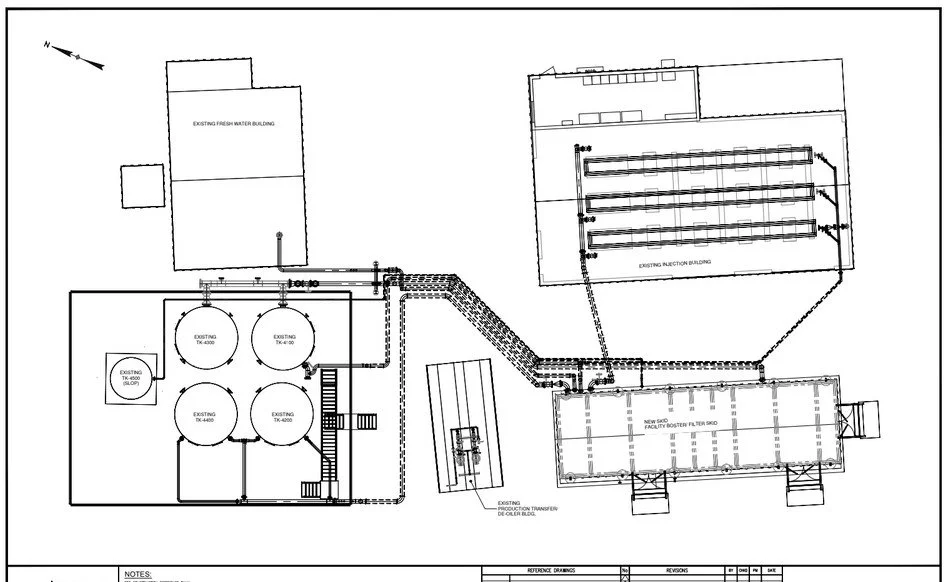
Plot Plans: Strategic Spatial Mastery
Plot Plans provide overhead views of facility layouts, illustrating equipment positioning, piping routes, and support structures relative to site boundaries and access points. They optimize space, mitigate safety risks like congestion, and align with environmental factors. Through Piping Design Solutions, detailed Plot Plans achieve harmonious site integrations that boost productivity and infrastructure longevity.
Elevations and Isometrics: Bridging Design to Fabrication
Elevation drawings and isometric views offer three-dimensional clarity on vertical alignments and pipe routings with exact measurements. Essential for fabrication accuracy, stress analysis, and installation sequencing, they ensure seamless on-site fits. Our interconnected drafting practices deliver holistic piping solutions that enhance project predictability, stakeholder confidence, and investment returns.

